Cette toute nouvelle villa pourrait être construite en 7 mois et dispose d'une piscine incluse. Il y a plusieurs parcelles avec permis prêtes à être construites cette propriété avec piscine compris près de Pinoso.
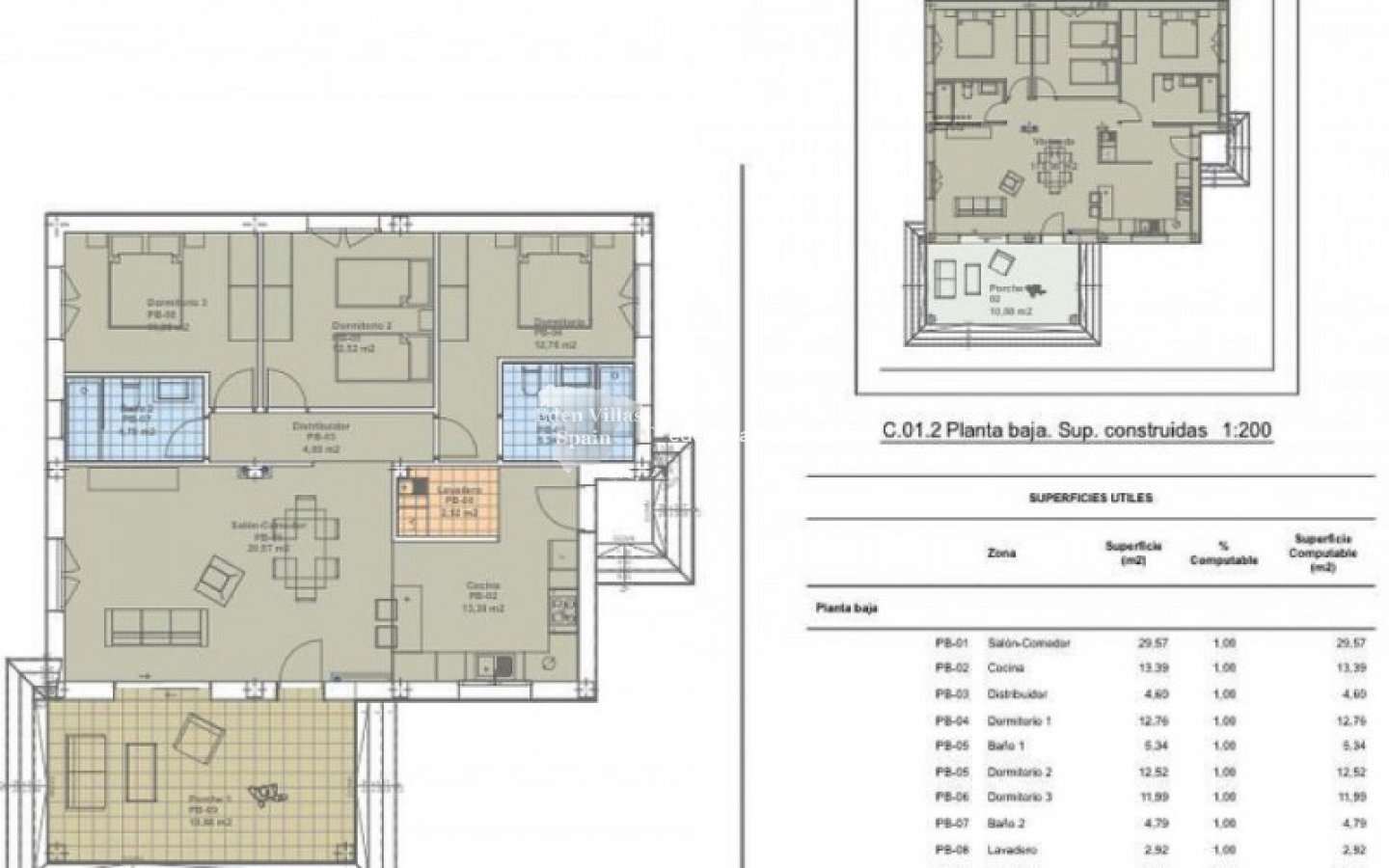
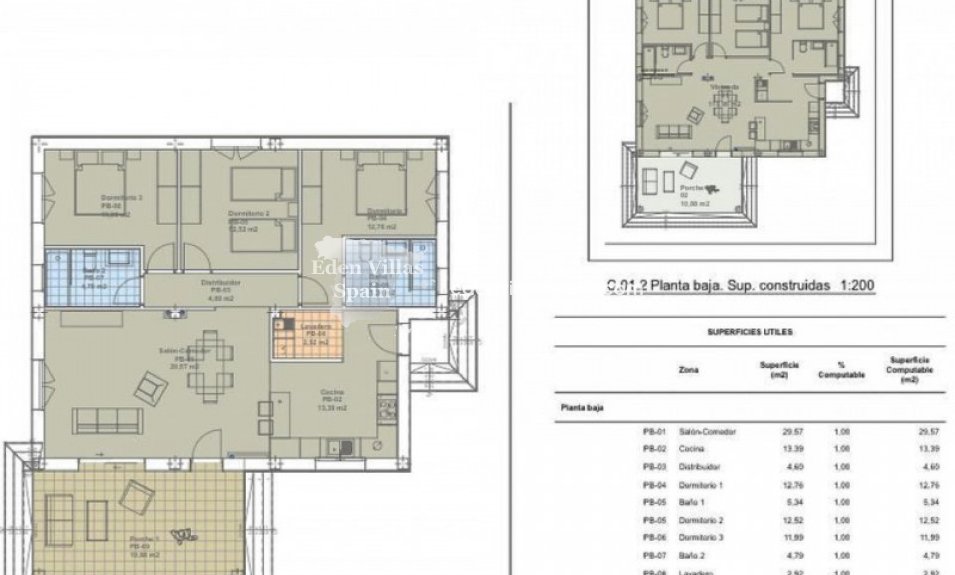
La propriété a une maison de 137 m² construite incluant la terrasse et se compose d'un grand salon spacieux avec espace salle à manger, 3 chambres doubles, 2 salles de bains (une en suite), 1 cuisine avec buanderie et porte arrière et grande terrasse avec belle campagne vues.
Cette propriété dispose d'un terrain de 10 000 m² avec piscine privée de 8 mx 4 m avec une grande terrasse ensoleillée. La propriété est en partie clôturée, environ 2 000 m² clôturés.
Les autres fonctionnalités incluent :
- le réseau électrique,
- eau de ville potable
- Pré-installation de la climatisation par conduits dans toute la maison
- Double vitrage
- Piscine 8m x 4m et lumières
- trottoir périmètre maison 0,80 de large
- trois panneaux solaires de 1,2 kilowatts de performance maximale
- meubles de cuisine et hotte
- Chauffage électrique 80 litres
- salle de bain avec meuble et toilettes sans cloisons
- pré-installation de conduits de climatisation sans machine
- fenêtres sans moustiquaires ni barreaux
- Tuyau de pré-installation dans le salon pour poêle à granulés
- Porte d'entrée avec trois points de sécurité
- Fosse septique écologique pour six personnes
- Clôture de 2 000 mètres avec porte coulissante et portail piéton sans moteur
- 10 ans d'assurance dommage structure
- Raccordements eau potable et électricité d'une puissance de 5 kilowatts sans compteur
- Etiquette certificat énergétique
La propriété est située à 5 minutes en voiture de la ville de Pinoso. Pinoso dispose de toutes les commodités dont vous avez besoin : des supermarchés comme Consum, Dia, Mas y Mas et Hiperber, un large éventail de restaurants, y compris des bars irlandais et indiens (50+), un centre médical ouvert 24h/24, des dentistes anglophones, un vétérinaire, hebdomadaire. Marché le samedi et marché couvert ouvert 6 jours sur 7. Pinoso a 3 écoles primaires, une école secondaire et une école de musique. Il y a aussi un nouveau centre culturel qui abrite une bibliothèque et des cours d'espagnol ouverts aux étrangers.
La ville d'Elda & Petrer est à 20 minutes en voiture, elle possède un grand hôpital avec des médecins anglophones, une grande variété de bars et de restaurants, un centre commercial couvert, une grande salle de sport internationale, Carrefour, Aldi, Lidl, un cinéma avec des films anglais qui sont projetés chaque semaine, les salles de quilles et les établissements de restauration rapide.
L'aéroport d'Alicante, la ville et les plages ne sont qu'à 45 minutes en voiture.